Comunicati stampa

Venite a trovarci al Nido!

Data di pubblicazione: Giovedì, 02 Marzo 2023

Tempo di lettura: 1 min

A marzo saranno aperti per la visita i nidi d'infanzia comunali di Rovereto
Leggi di più
Comune di Rovereto: Valerio Bazzanella nuovo Segretario Comunale

Data di pubblicazione: Mercoledì, 01 Marzo 2023

Tempo di lettura: 1 min

In Consiglio Comunale il saluto al Segretario pro tempore, Alberto Giabardo che ha mantenuto il ruolo per due anni
Leggi di più
SE.NO: una storia vera di cura e rinascita

Data di pubblicazione: Mercoledì, 22 Febbraio 2023

Tempo di lettura: 2 min

Sabato 25 febbraio, al Teatro alla Cartiera, in scena lo spettacolo di Andrea Brunello che racconta il percorso di una donna di fronte alla scoperta di un tumore al seno
Leggi di più
A che piano? Progetti per giovani che puntano in alto

Data di pubblicazione: Martedì, 21 Febbraio 2023

Tempo di lettura: 2 min

Venerdì 3 marzo 2023 alle 20.00 si terrà allo Smartlab di Rovereto una presentazione pubblica di quattro progetti dei Piani Giovani di Zona di Rovereto, Trento e Arcimaga uniti da un tema comune: attualità e divulgazione.
Leggi di più
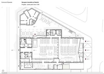
Ex Peterlini: approvato il progetto preliminare

Data di pubblicazione: Giovedì, 16 Febbraio 2023

Tempo di lettura: 2 min

La Vicesindaca Robol: “Non sarà solo una mensa, ma un vero luogo di aggregazione per i giovani”
Leggi di più
Rovereto commemora le vittime delle Foibe e ricorda l’esodo giuliano dalmata

Data di pubblicazione: Venerdì, 10 Febbraio 2023

Tempo di lettura: 3 min

Nella chiesa di Santa Caterina la messa. A seguire la cerimonia di deposizione della corona per le vittime delle Foibe e gli esodi giuliano dalmati in Largo Vittima delle Foibe
Leggi di più
“Il Trentino è come il quadro “La scuola di Atene” di Raffaello”

Data di pubblicazione: Martedì, 24 Gennaio 2023

Tempo di lettura: 2 min

Il giornalista e critico d’arte Luigi Lambertini dona al Comune di Rovereto la sua preziosa collezione di opere d’arte. Oltre 140 opere tra cui Depero, Fontana, Burri, Morandi. Oggi l’incontro con la Giunta comunale
Leggi di più
"La Germania sì che ha fatto i conti con il nazismo"

Data di pubblicazione: Lunedì, 23 Gennaio 2023

Martedì 24 gennaio, ore 18.00, Biblioteca Civica Tartarotti
Leggi di più
Rovereto chiama i giovani a raccolta

Data di pubblicazione: Venerdì, 20 Gennaio 2023

Tempo di lettura: 2 min

Aperta la call per raccogliere idee-progetto per l'anno 2023, con possibilità di progettualità biennali 2023-24, promossa dal Piano Giovani di Rovereto
Leggi di più
Almeno i nomi

Data di pubblicazione: Giovedì, 19 Gennaio 2023

Tempo di lettura: 2 min

Almeno i nomi
Leggi di più
Family Audit: prosegue il lavoro del Comune di Rovereto per diventare sempre più a misura di famiglia

Data di pubblicazione: Giovedì, 12 Gennaio 2023

Tempo di lettura: 2 min

Il Comune di Rovereto ha concluso il secondo ciclo di consolidamento della certificazione Family Audit ed è entrato nel primo anno del terzo ciclo. Nel 2023 nuovi corsi di formazione anche per i Dirigenti
Leggi di più
“Governare significa pensare al bene della Comunità oltre il destino personale degli amministratori”

Data di pubblicazione: Giovedì, 12 Gennaio 2023

Tempo di lettura: 2 min

La replica del Sindaco Valduga in discussione generale sulla manovra di Bilancio. Politica, ferrovia, rapporto con DE, alcuni dei temi trattati nell’intervento
Leggi di più
Bilancio: iniziata la discussione in aula

Data di pubblicazione: Lunedì, 09 Gennaio 2023

Consiglieri delegati “rompono il ghiaccio”, aprendo il dibattito sulla manovra presentata dal Sindaco Valduga e dalla giunta a dicembre
Leggi di più
Il Comune mette all’asta i mezzi dismessi

Data di pubblicazione: Venerdì, 09 Dicembre 2022

Tempo di lettura: 2 min

Da oggi, 9 dicembre, alle ore 15.00 al 2 febbraio, l’asta sul sito gobid.it
Leggi di più
Ex Alpe: approvato il Progetto Esecutivo

Data di pubblicazione: Venerdì, 02 Dicembre 2022

Tempo di lettura: 3 min

La Giunta comunale di Rovereto ha approvato l’atto che darà il via all’appalto per la riqualificazione dell’area Ex Alpe. Presto sorgeranno il Polo 0-6 e il nuovo parco urbano a Sacco
Leggi di più
Rovereto, Città che Legge

Data di pubblicazione: Venerdì, 25 Novembre 2022

Tempo di lettura: 2 min

La Città della Quercia ottiene il riconoscimento del Centro per il libro e la lettura e dell’ANCI. Robol: “Il primo passo verso la Capitale del Libro”
Leggi di più
San Giorgio, inaugurata la panchina rossa contro la violenza sulle donne

Data di pubblicazione: Venerdì, 25 Novembre 2022

Tempo di lettura: 1 min

In occasione della Giornata internazionale contro la violenza sulle donne, questa mattina è stata inaugurata una panchina rossa nel cuore di San Giorgio a Rovereto. Il Sindaco Francesco Valduga, i rappresentanti della Circoscrizione Sacco San Giorgio, studenti e studentesse di vari istituti scolastici, hanno ribadito con forza il no alla violenza di genere
Leggi di più
“Non è destino”, prosegue a Rovereto la rassegna contro la Violenza sulle Donne

Data di pubblicazione: Lunedì, 21 Novembre 2022

Tempo di lettura: 2 min

Dopo il successo riscontrato dalle iniziative delle scorse settimane, il Comune continua la promozione di incontri ed eventi in occasione della Giornata internazionale per l’eliminazione della violenza contro le donne
Leggi di più
Ianeselli e Valduga alla Provincia: “Sui dividendi De subito un confronto per individuare una soluzione”

Data di pubblicazione: Giovedì, 17 Novembre 2022

I Sindaci di Rovereto e Trento scrivono una lettera alla Provincia.“Da considerare il già avvenuto incasso da parte della Pat di 9/10 degli oltre 33 milioni di euro di extraprofitti generati da Dolomiti Energia”
Leggi di più
Tessere la pace 2021-22

Data di pubblicazione: Martedì, 15 Novembre 2022

Tempo di lettura: 2 min

Il 20 novembre alla Campana dei Caduti il riconoscimento alla memoria di Pierantonio Costa e Luca Attanasio, testimoni di pace e fraternità
Leggi di più
Non è il destino

Data di pubblicazione: Martedì, 08 Novembre 2022

Tempo di lettura: 3 min

Al via la rassegna di manifestazioni a Rovereto contro la Violenza sulle Donne
Leggi di più
Festivalmeteorologia 2022, come le nuvole, oltre i confini

Data di pubblicazione: Martedì, 08 Novembre 2022

Tempo di lettura: 5 min

Nei giorni in cui in Egitto si tiene la COP27, Rovereto torna ad ospitare il festival dedicato alla scienza del meteo e all’osservazione e studio dei cambiamenti climatici.
Leggi di più
“Tutti noi dobbiamo essere costruttori di Pace”

Data di pubblicazione: Venerdì, 04 Novembre 2022

Tempo di lettura: 3 min

Celebrata al Sacrario Militare di Castel Dante la giornata del 4 novembre, alla presenza del Sindaco Francesco Valduga e dell’assessore provinciale Achille Spinelli
Leggi di più
Rovereto in prima linea nella costruzione della rete dei Comuni italiani

Data di pubblicazione: Giovedì, 27 Ottobre 2022

Dopo la firma del protocollo con Matteo Ricci, sindaco della città di Pesaro, Francesco Valduga e la Vicesindaca Giulia Robol hanno incontrato Gianni Nuti, Sindaco di Aosta, per iniziare una collaborazione nell’ottica di costruire una rete tra i comuni medi-piccoli italiani per valorizzare il patrimonio storico, culturale e paesaggistico
Leggi di più